off-Grid Spray Foam Insulation Modular Container House Prefab House Prefab Casa Modular Shipping Container House

Customization: Available
After-sales Service: Assemble Instruct
Application: Villa

Product Description

📋 Basic Information
Model NO.
hk126
Installation
Standard Installation
Feature
Earthquake Resistant, Easily Movable, Eco-Friendliness, Flexibly Combinable, Leak Proof, Moisture Proof, Thermal Insulation, Waterproof, Wind Resistance
Decoration
Luxury
Power
Grid off
Safety
Environmental Protection, Safe
Financial
Economy
Use
Permanently Reside
Packing
Plywood Packing
Specification
2 unites 40ft HQ container
Origin
China
HS Code
940600009
📦 Packaging & Delivery
Package Size
1212.90cm * 243.80cm * 289.60cm
Gross Weight
5000.000kg
Capacity
500 Units / Year
🏗️ Product Description

Modified from New 2X40ft HQ ISO Standard Shipping Containers.

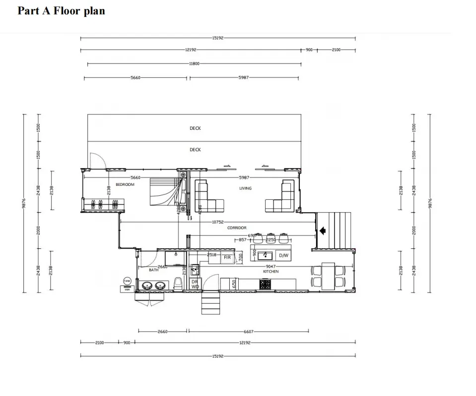
Based on in-house modification, the floor, walls, and roof can all be modified to achieve excellent force resistance, heat insulation, sound insulation, and moisture resistance. It features a tidy and clean appearance with easy maintenance. The total living space is approximately 84sqms for the house and 35.4sqms for the deck.

Specification Options
Original Container 20ft GP/HQ, 40ft GP/HQ (Customizable Length, Width, Height)
Insulation EPS foam, PU foam, or Rock wool (50mm, 75mm, 100mm, 150mm thickness)
Wall Framing Wood studs or Metal studs
Inner Decoration Gypsum board + ICI, Magnesium Oxide Board + ICI, Ceramic tile, or Hardwood
Electricity Standard AS standard, European standard, JP standard, Chinese standard, France standard, etc.
Doors Metal insulated door, Wood door, Security door, Copper door, etc.
Windows Customized size, single or double glazed glass with Aluminum or PVC frame
Modular Container House Overview
📷 Detailed Photos
Interior View:
⚙️ Product Processing Photo
Production Process
FAQ
Why choose a container house for my residence?
It is a turn-key solution. These houses are prefabricated with insulation, doors, windows, plumbing, wiring, and even furniture, saving you significant time and energy during setup.
Are container houses safe during earthquakes?
Yes. Unlike traditional brick buildings, the steel structure of a container house is highly resistant to seismic activity and will not collapse easily, ensuring safety during earthquakes.
What insulation options are available for temperature control?
We offer multiple options including EPS foam, PU foam, and Rock wool with thicknesses ranging from 50mm to 150mm to ensure excellent thermal and sound insulation.
Can the interior design be customized?
Absolutely. You can choose from various interior finishes such as Gypsum board, Magnesium Oxide board, ceramic tiles for wet areas, or hardwood flooring to match your dream design.
How is the house delivered and installed?
The house is packed using plywood and typically shipped as 2 units in a 40ft HQ container. Installation is standardized and simple, often involving bolt connections.
Does it meet international electrical standards?
Yes, we can provide electrical wiring and sockets that meet AS, European, JP, Chinese, or France standards according to your specific requirements.

Related Products